Prometheus Real estate. Code of real estate: 1971
Villa outside the city in Tsarskoe Selo!
506 700.00 €
Description
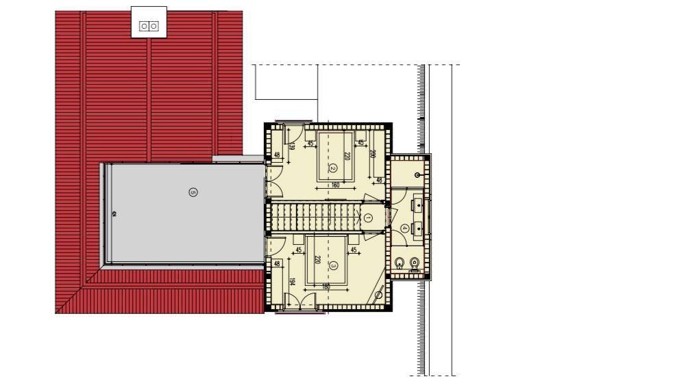
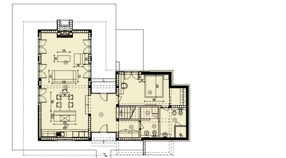
Villa outside the city in Tsarskoe Selo (Near Kuche) Area of 160 m2 on a plot of 364 m2, consists of 3 bedrooms, living room, kitchen, dining area, 2 bathrooms, terrace overlooking the sea, barbecue area, parking. The complex is located in Blizi Kuce, 7 km from Budva. In the closed area there is a swimming pool, recreation area, and children\\\\\\\"s playground. The villa is designer renovated, furnished with modern appliances. The area offers stunning views of Sveti Stefan! Very quiet and peaceful place!
Property Details
City
Blizikuce
Address
Blizikuce
Year built
2012
Total living surface area
160 m2
Living area
160 m2
Plot area
364 m2
Building floors
2
Number of bedrooms
3
Number of balconies / terraces
2
Furniture
Partially furnished
View from the window / balcony
City view
Parking type
Above ground
Infrastructure and equipment
Air Conditioning
Parking
















