Prometheus Недвижимость. Код недвижимости: 1928
Пентхаус с видом на море в новом здании в районе Розино в Будве!
589 000.00 €
Описание
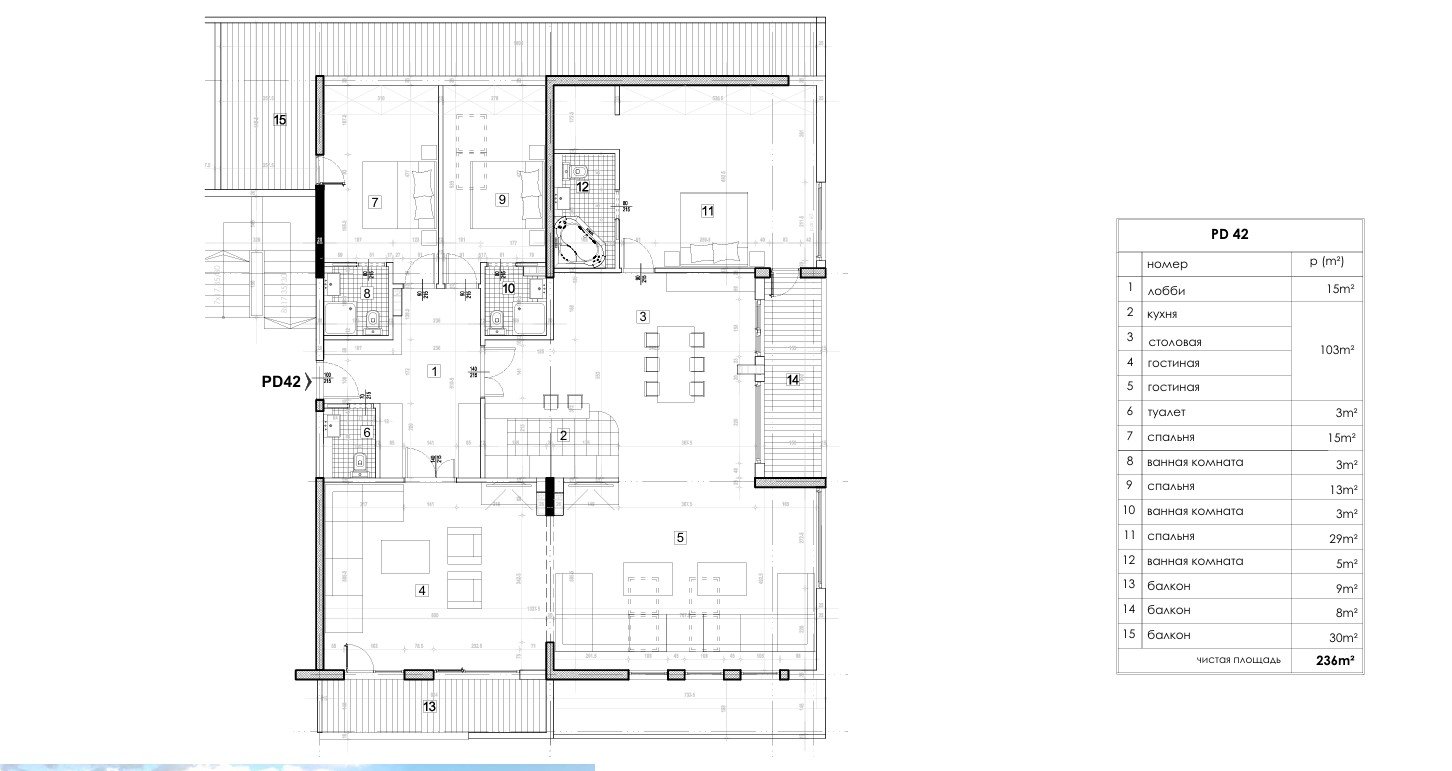
Пентхаус с видом на море в новом здании в районе Розино в Будве! Площадь 236 м2 состоит из кухни со столовой зоной, просторная гостиная, 3 спальни, 4 терассы, гардеробная, 4 санузла. В здании охрана, видеонаблюдение, домофон, 2 лифта, интернет, построено в 2017 году. Качественный застройщик. Сделана предчистовая отделка, осталось положить паркет и керамику, установить межкомнатные двери, установить сантехнику. Здание, находится в отличной локации, рядом магазин Okov, автостанция, клиника мой лаб. Возможность покупки паркинг места.
Характеристики объекта недвижимости
Город
Будва
Адрес
Rozino
Год постройки
2017
Общая площадь
236 m2
Жилая площадь
236 m2
Этажность
7
Этаж
7
Количество спален
3
Количество балконов / террас
4
Мебель
Полностью меблирована
Вид из окна / балкона
Прямой вид на море
Инфраструктура и оборудование
Лифт
Кондиционер
